Rustic Retreat • Lakeshire
Lakeshire
Bedrooms
3 Bed
Bathrooms
3 Bath
Square Feet
3,000 Sq. Ft.
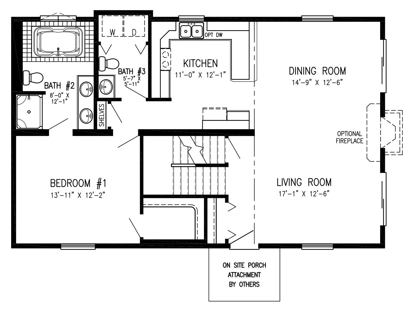
Lakeshire is a Rustic Retreat floor plan with 3 bedrooms, 3 bathrooms, and 3000 square feet.
Home Style
Rustic Retreat
Plan Code
lakeshire
Availability
Published

Interested in Lakeshire?
Talk with our team about pricing, custom options, and the best builder path for your timeline.
