Rustic Retreat • Lake Forest
Lake Forest
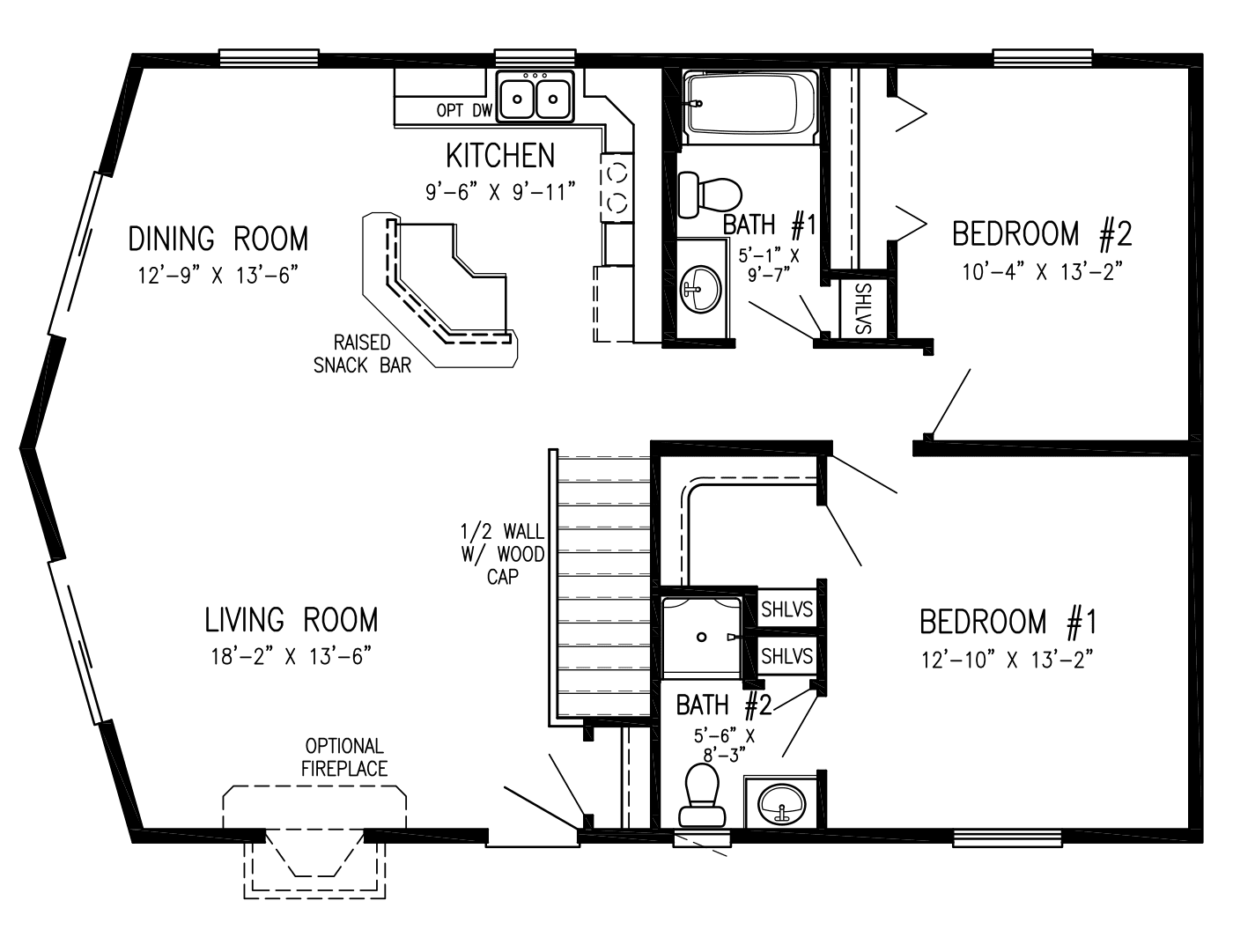
Bedrooms
2 Bed
Bathrooms
2 Bath
Square Feet
3,000 Sq. Ft.
Lake Forest is a Rustic Retreat floor plan with 2 bedrooms, 2 bathrooms, and 3000 square feet.
Home Style
Rustic Retreat
Plan Code
lake-forest
Availability
Published

Interested in Lake Forest?
Talk with our team about pricing, custom options, and the best builder path for your timeline.
