Lifestyle Two Story • Scarlett
Scarlett
Bedrooms
3 Bed
Bathrooms
3 Bath
Square Feet
2,000 Sq. Ft.
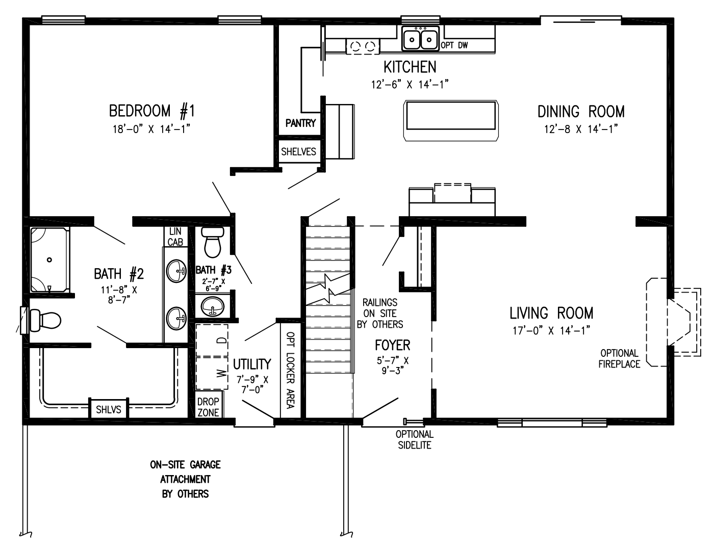
Scarlett is a Lifestyle Two Story floor plan with 3 bedrooms, 3 bathrooms, and 2000 square feet.
Home Style
Lifestyle Two Story
Plan Code
scarlett
Availability
Published

Interested in Scarlett?
Talk with our team about pricing, custom options, and the best builder path for your timeline.
