Lifestyle Two Story • Providence
Providence
Bedrooms
4 Bed
Bathrooms
4 Bath
Square Feet
2,000 Sq. Ft.
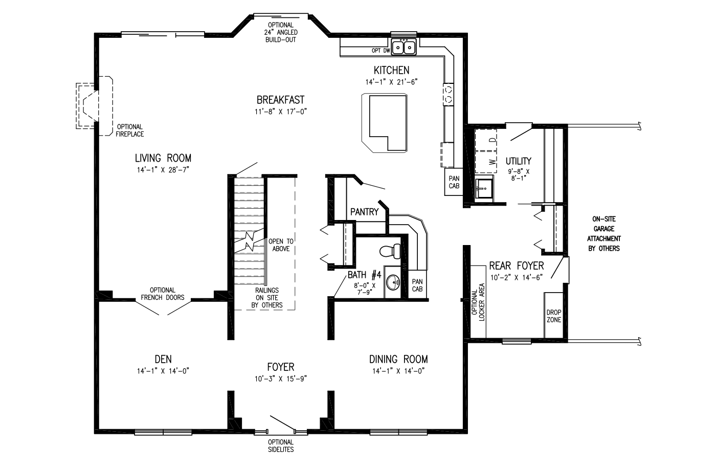
Providence is a Lifestyle Two Story floor plan with 4 bedrooms, 4 bathrooms, and 2000 square feet.
Home Style
Lifestyle Two Story
Plan Code
providence
Availability
Published

Interested in Providence?
Talk with our team about pricing, custom options, and the best builder path for your timeline.
