Weekender • Haven
Haven
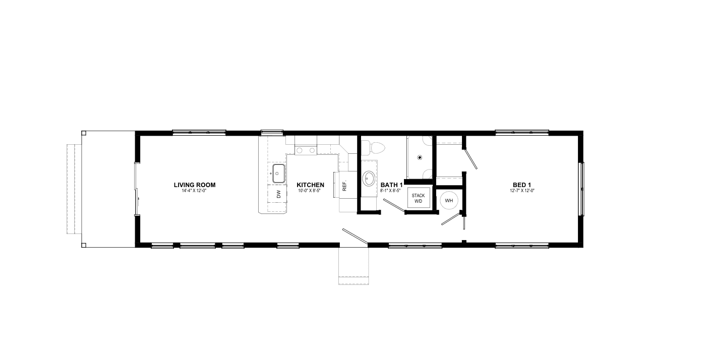
Bedrooms
1 Bed
Bathrooms
1 Bath
Square Feet
1,200 Sq. Ft.
Haven is a Weekender floor plan with 1 bedrooms, 1 bathrooms, and 1200 square feet.
Home Style
Weekender
Plan Code
haven
Availability
Published

Interested in Haven?
Talk with our team about pricing, custom options, and the best builder path for your timeline.
