Back to Rustic Retreat
Previous PlanNext Plan
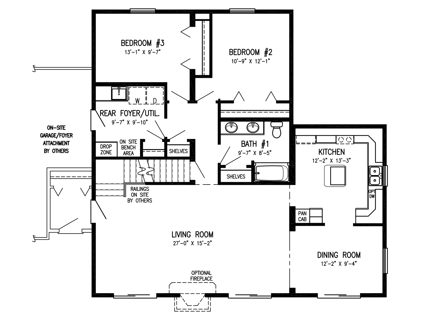
Rustic Retreat • Timber Trail
Timber Trail
Bedrooms
3 Bed
Bathrooms
2 Bath
Square Feet
3,000 Sq. Ft.
Timber Trail is a Rustic Retreat floor plan with 3 bedrooms, 2 bathrooms, and 3000 square feet.
Home Style
Rustic Retreat
Plan Code
timber-trail
Availability
Published

Interested in Timber Trail?
Talk with our team about pricing, custom options, and the best builder path for your timeline.
