Rustic Retreat • Timber Creek
Timber Creek
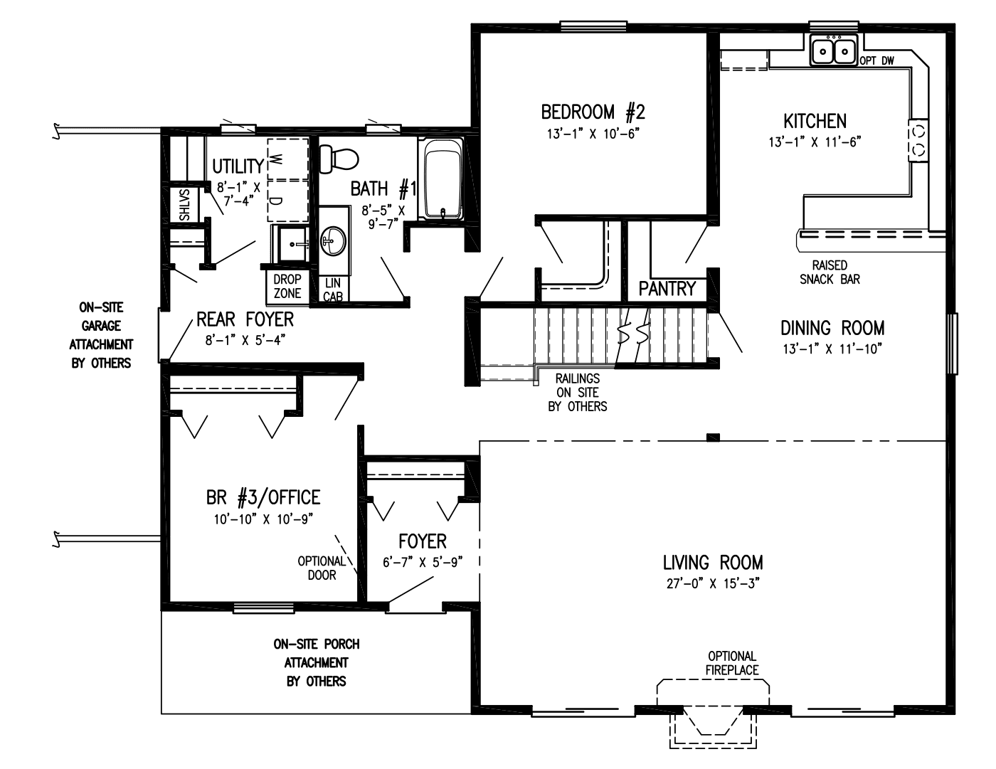
Bedrooms
3 Bed
Bathrooms
2 Bath
Square Feet
3,000 Sq. Ft.
Timber Creek is a Rustic Retreat floor plan with 3 bedrooms, 2 bathrooms, and 3000 square feet.
Home Style
Rustic Retreat
Plan Code
timber-creek
Availability
Published

Interested in Timber Creek?
Talk with our team about pricing, custom options, and the best builder path for your timeline.
