Rustic Retreat • Sun Valley
Sun Valley
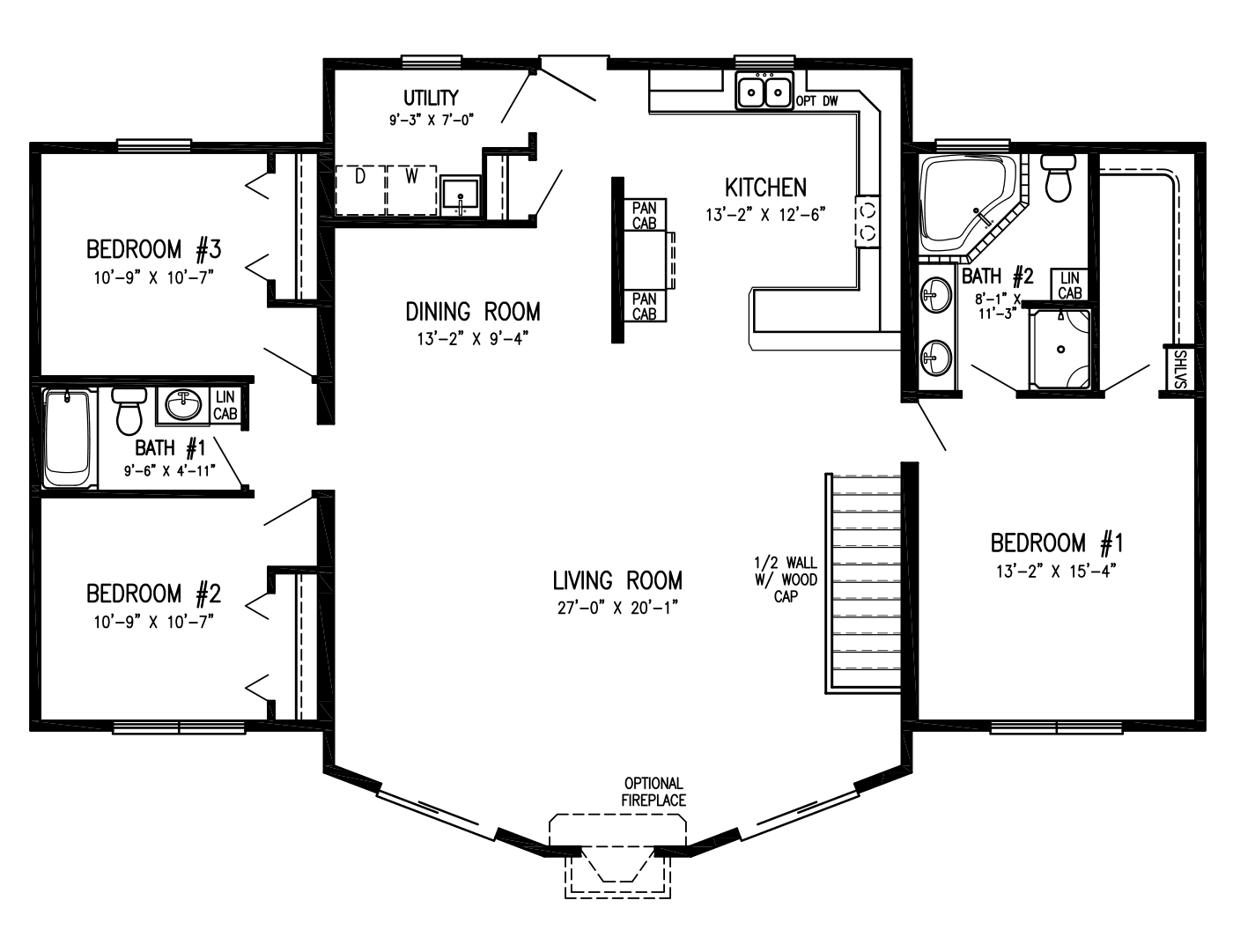
Bedrooms
4 Bed
Bathrooms
2 Bath
Square Feet
3,000 Sq. Ft.
Sun Valley is a Rustic Retreat floor plan with 4 bedrooms, 2 bathrooms, and 3000 square feet.
Home Style
Rustic Retreat
Plan Code
sun-valley
Availability
Published

Interested in Sun Valley?
Talk with our team about pricing, custom options, and the best builder path for your timeline.
