Rustic Retreat • Paxton II
Paxton II
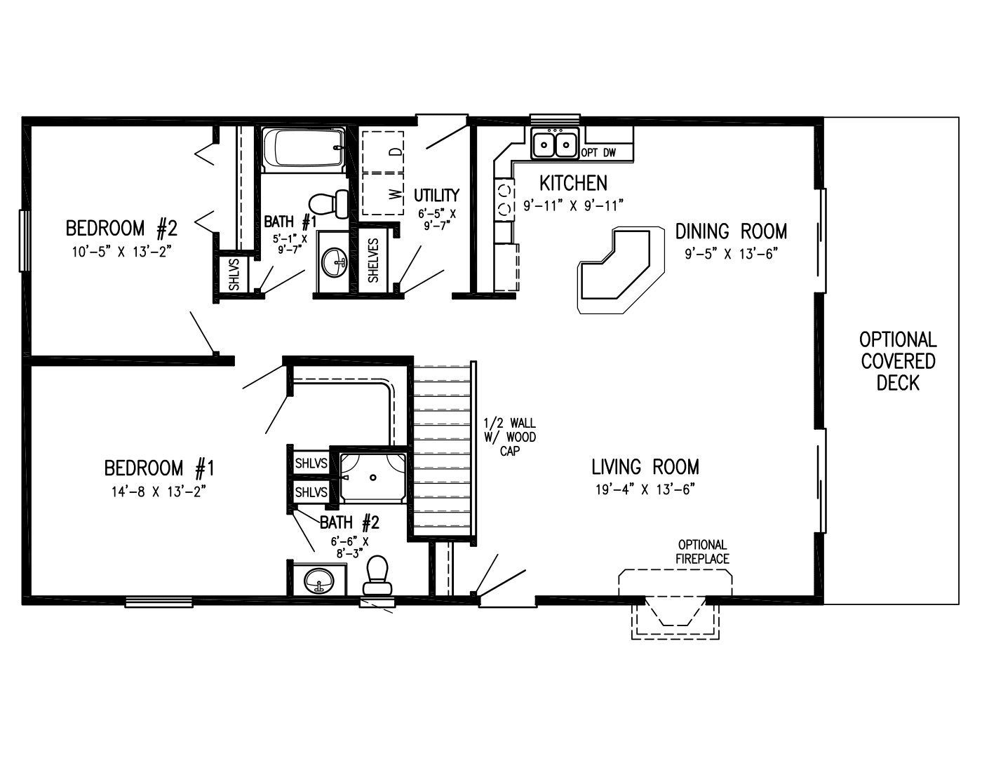
Bedrooms
2 Bed
Bathrooms
2 Bath
Square Feet
3,000 Sq. Ft.
Paxton II is a Rustic Retreat floor plan with 2 bedrooms, 2 bathrooms, and 3000 square feet.
Home Style
Rustic Retreat
Plan Code
paxton-ii
Availability
Published

Interested in Paxton II?
Talk with our team about pricing, custom options, and the best builder path for your timeline.
