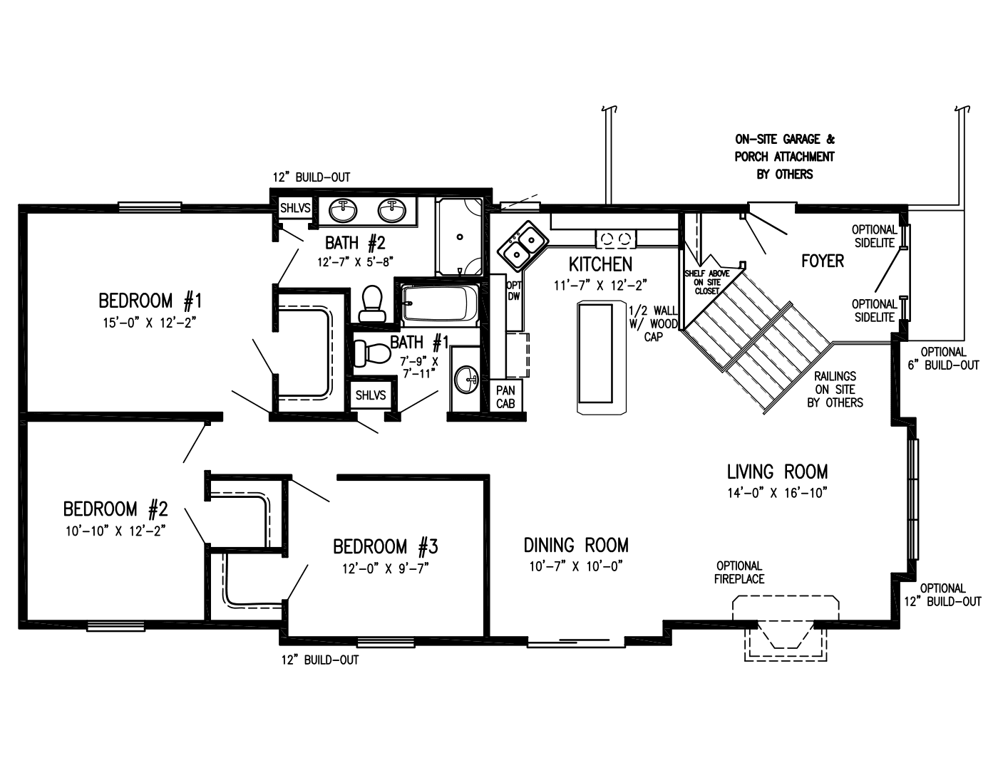
Lifestyle Ranch • Windsor
Windsor
Bedrooms
3 Bed
Bathrooms
2 Bath
Square Feet
1,500 Sq. Ft.
Windsor is a Lifestyle Ranch floor plan with 3 bedrooms, 2 bathrooms, and a brochure-based 1500 square foot placeholder.
Home Style
Lifestyle Ranch
Plan Code
windsor
Availability
Published

Interested in Windsor?
Talk with our team about pricing, custom options, and the best builder path for your timeline.
