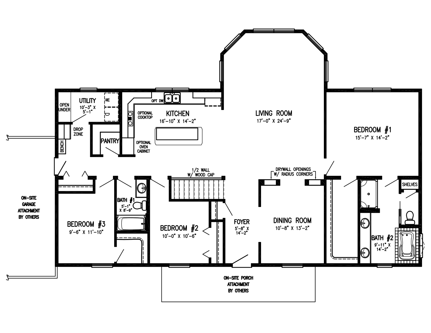
Lifestyle Ranch • Sterling
Sterling
Bedrooms
3 Bed
Bathrooms
2 Bath
Square Feet
1,500 Sq. Ft.
Sterling is a Lifestyle Ranch floor plan with 3 bedrooms, 2 bathrooms, and a brochure-based 1500 square foot placeholder.
Home Style
Lifestyle Ranch
Plan Code
sterling
Availability
Published

Interested in Sterling?
Talk with our team about pricing, custom options, and the best builder path for your timeline.
