Lifestyle Ranch • Sheldon
Sheldon
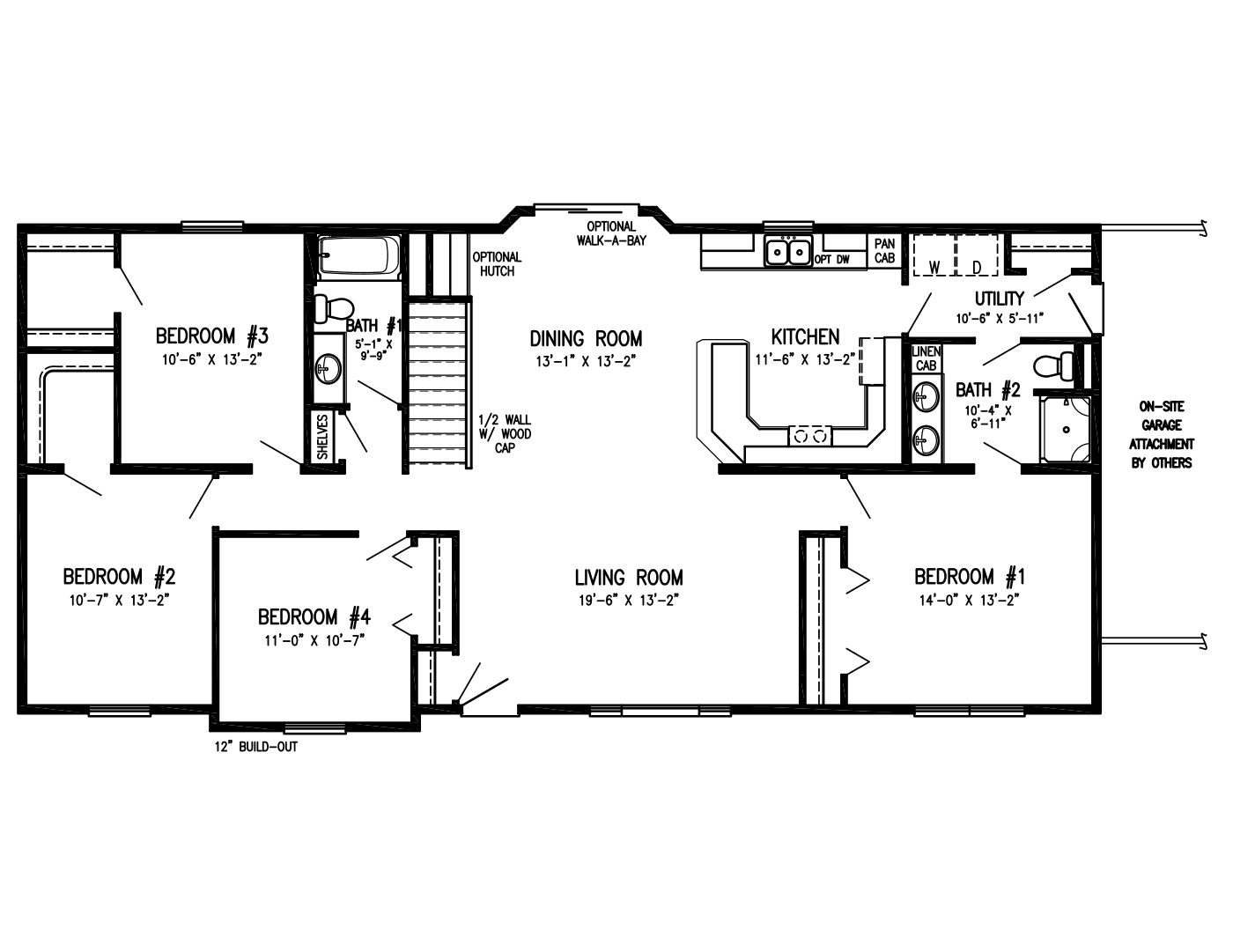
Bedrooms
4 Bed
Bathrooms
2 Bath
Square Feet
1,500 Sq. Ft.
Sheldon is a Lifestyle Ranch floor plan with 4 bedrooms, 2 bathrooms, and a brochure-based 1500 square foot placeholder.
Home Style
Lifestyle Ranch
Plan Code
sheldon
Availability
Published

Interested in Sheldon?
Talk with our team about pricing, custom options, and the best builder path for your timeline.
