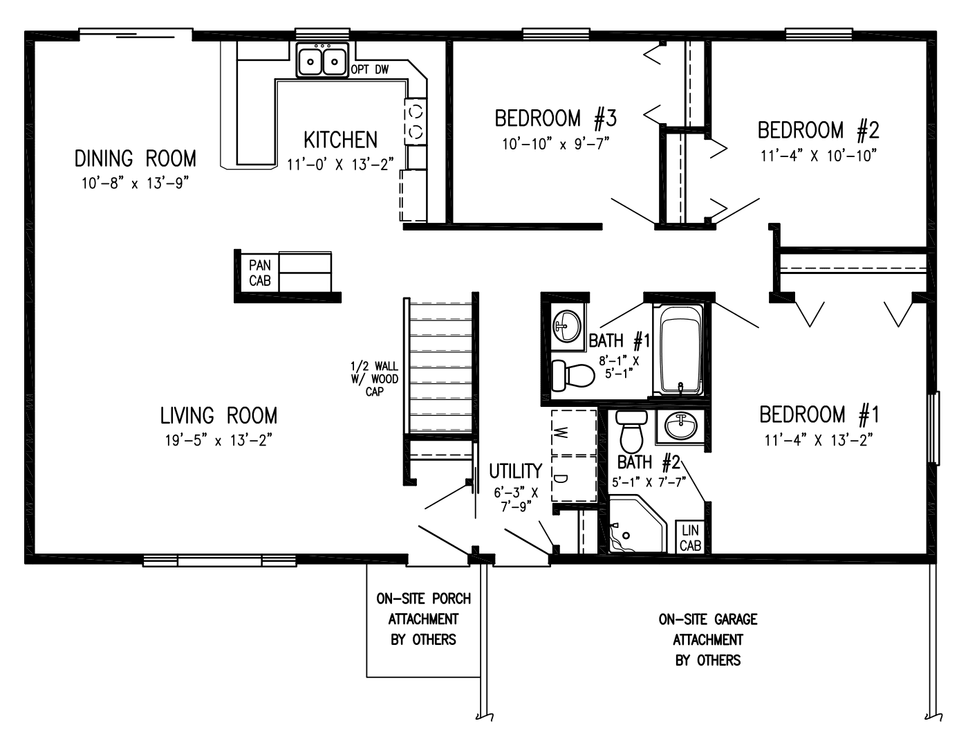
Lifestyle Ranch • Roxboro
Roxboro
Bedrooms
3 Bed
Bathrooms
2 Bath
Square Feet
1,500 Sq. Ft.
Roxboro is a Lifestyle Ranch floor plan with 3 bedrooms, 2 bathrooms, and a brochure-based 1500 square foot placeholder.
Home Style
Lifestyle Ranch
Plan Code
roxboro
Availability
Published

Interested in Roxboro?
Talk with our team about pricing, custom options, and the best builder path for your timeline.
