Lifestyle Ranch • Mayfield
Mayfield
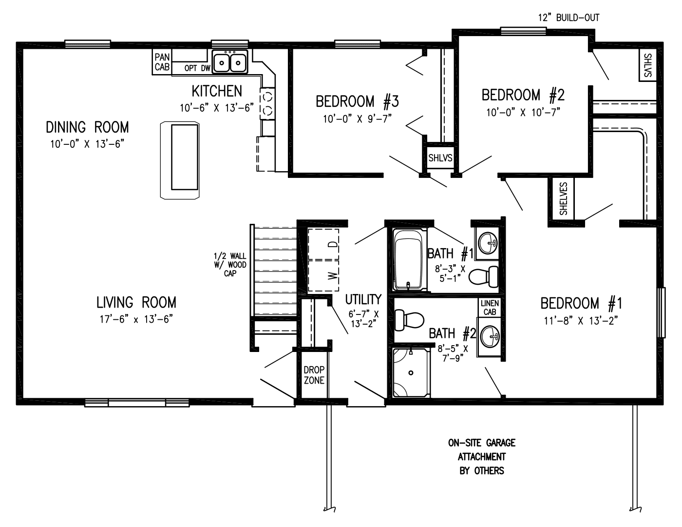
Bedrooms
3 Bed
Bathrooms
2 Bath
Square Feet
1,500 Sq. Ft.
Mayfield is a Lifestyle Ranch floor plan with 3 bedrooms, 2 bathrooms, and a brochure-based 1500 square foot placeholder.
Home Style
Lifestyle Ranch
Plan Code
mayfield
Availability
Published

Interested in Mayfield?
Talk with our team about pricing, custom options, and the best builder path for your timeline.
