Lifestyle Ranch • Kendall Park
Kendall Park
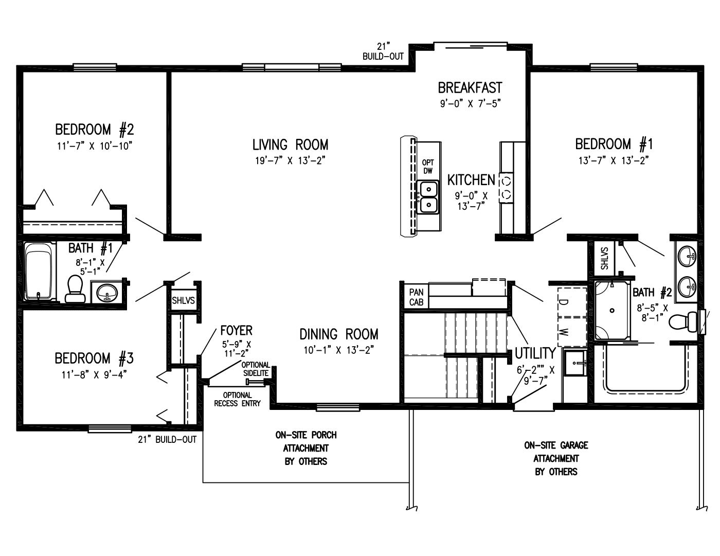
Bedrooms
3 Bed
Bathrooms
2 Bath
Square Feet
1,500 Sq. Ft.
Kendall Park is a Lifestyle Ranch floor plan with 3 bedrooms, 2 bathrooms, and a brochure-based 1500 square foot placeholder.
Home Style
Lifestyle Ranch
Plan Code
kendall-park
Availability
Published

Interested in Kendall Park?
Talk with our team about pricing, custom options, and the best builder path for your timeline.
