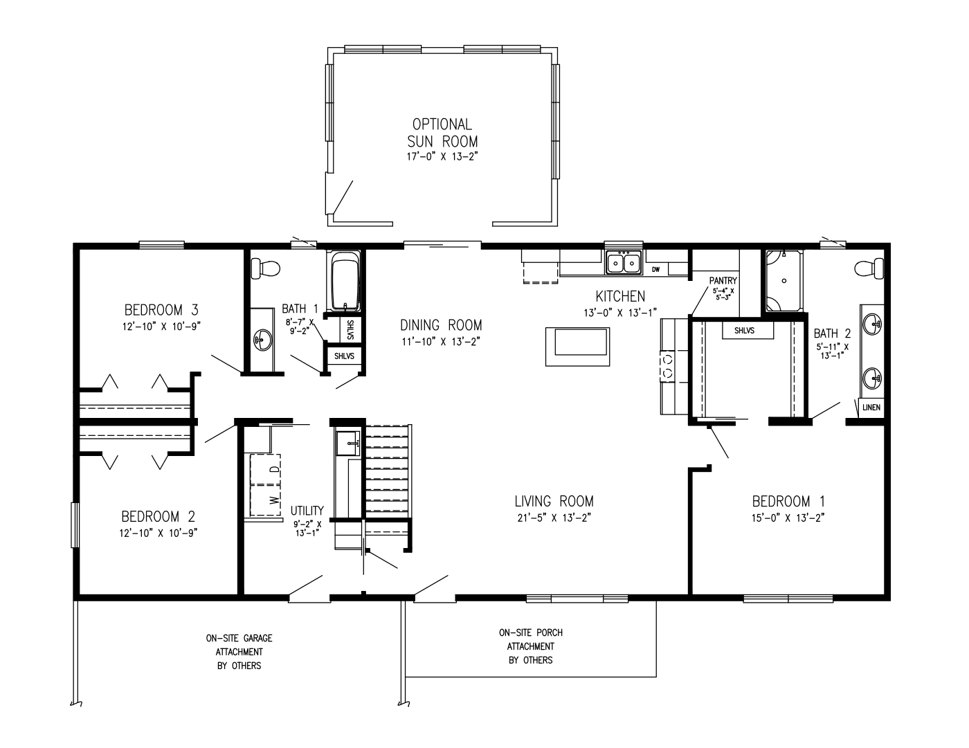
Lifestyle Ranch • Granite Bay
Granite Bay
Bedrooms
3 Bed
Bathrooms
2 Bath
Square Feet
1,500 Sq. Ft.
Granite Bay is a Lifestyle Ranch floor plan with 3 bedrooms, 2 bathrooms, and a brochure-based 1500 square foot placeholder.
Home Style
Lifestyle Ranch
Plan Code
granite-bay
Availability
Published

Interested in Granite Bay?
Talk with our team about pricing, custom options, and the best builder path for your timeline.
