Lifestyle Ranch • Ferndale
Ferndale
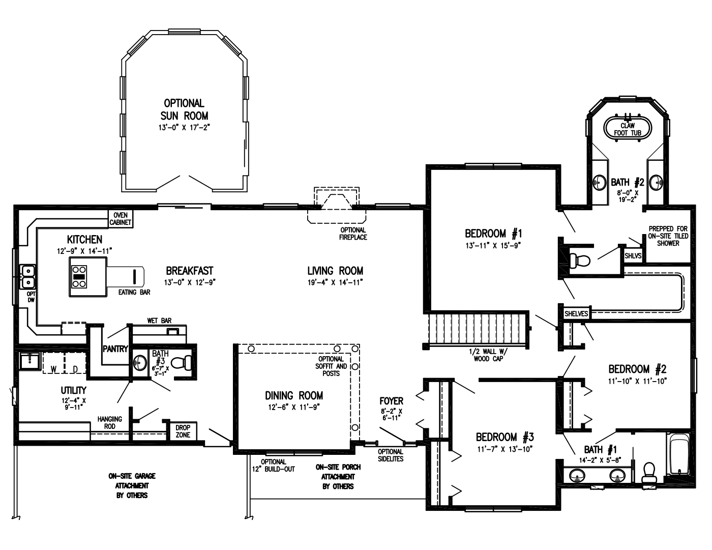
Bedrooms
3 Bed
Bathrooms
2 Bath
Square Feet
1,500 Sq. Ft.
Ferndale is a Lifestyle Ranch floor plan with 3 bedrooms, 2 bathrooms, and a brochure-based 1500 square foot placeholder.
Home Style
Lifestyle Ranch
Plan Code
ferndale
Availability
Published

Interested in Ferndale?
Talk with our team about pricing, custom options, and the best builder path for your timeline.
