Lifestyle Ranch • Eastport
Eastport
Bedrooms
3 Bed
Bathrooms
2 Bath
Square Feet
1,500 Sq. Ft.
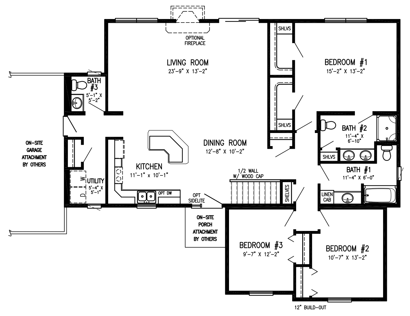
Eastport is a Lifestyle Ranch floor plan with 3 bedrooms, 2 bathrooms, and a brochure-based 1500 square foot placeholder.
Home Style
Lifestyle Ranch
Plan Code
eastport
Availability
Published

Interested in Eastport?
Talk with our team about pricing, custom options, and the best builder path for your timeline.
