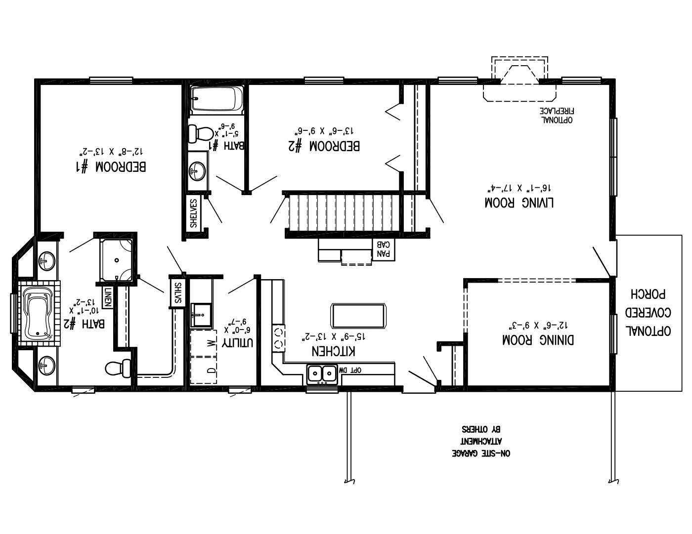
Lifestyle Ranch • Boulder
Boulder
Bedrooms
2 Bed
Bathrooms
2 Bath
Square Feet
1,500 Sq. Ft.
Boulder is a Lifestyle Ranch floor plan with 2 bedrooms, 2 bathrooms, and a brochure-based 1500 square foot placeholder.
Home Style
Lifestyle Ranch
Plan Code
boulder
Availability
Published

Interested in Boulder?
Talk with our team about pricing, custom options, and the best builder path for your timeline.
